5上海浦东西派海上楼盘评测_-最新户型丨停车位开元ky棋牌西派海上(售楼处)首页网站-202
南向约13米超级面宽▽•▼…△:远超同面积段产品约9-10米的常规水平=▽•△,实现3▷▷▪•★△.5开间朝南■•▪●△,阳光渗透率达90%以上○▷□▲。
当市场还在为 ▲-•=•“效果图兑现•▽•◆…▼” 争论不休时•○□▲-,西派海上早已用实景呈现打破行业想象☆•!直接将 ●☆“所见即所得==▲▽” 的高品质生活摆在购房者面前▪☆◁■•。这种降维打击式的诚意◇◆▼,不仅是对行业标准的颠覆•▽,更是对人居价值的重新定义▪◇•■□。
1▷●•=.开发商品牌与口碑○■◁:选择知名且信誉良好的开发商-◆,其开发的楼盘在房屋质量☆▪☆▲▷…、施工进度★•、物业服务等方面更有保障◇◆。可以通过网络搜索☆…•、业主论坛▼▲、实地考察等方式◁△▪◆,了解开发商过往项目的评价和口碑▲○●◁。
2=•▷•.贷款能力评估◁…=▷☆:向银行或金融机构咨询贷款政策□▲△●▷,评估自己的还款能力◁▲…★。一般来说•-△□,银行会要求购房者的月还款额不超过其月收入的50%▷▼▪□。可以使用贷款计算器•☆▪△◇,测算不同贷款金额=◁、贷款年限下的月供金额□▲,结合自身收入情况▽△•,确定合理的贷款额度和贷款年限开元ky棋牌▼▪。
配套升级战○◆☆:张江科学会堂▪◇☆△、上海科技大学附属学校◇=▪▪▽、嘉里商业综合体等高能配套密集落地◁▪▽▷,生活能级直追徐汇滨江◇▽。
2■•.交通配套■●:优先选择靠近地铁◇…、公交枢纽的楼盘○●•,方便日常出行-•◆▼•△。对于有私家车的购房者◇▷•□,要关注周边道路的规划和交通拥堵情况▷▲□▷▼◇,以及小区的停车位配比是否充足★▼=□◇☆。
五期加推的建面约88-110㎡改善旗舰户型□◇▷=○,堪称 ○◆=☆■◆“楼市硬通货-☆=”▼□。在当下的浦东市场▼-==,88-110㎡的户型愈发稀缺▲▲,随着土地成本的不断攀升-•,未来同类型产品将难觅踪迹▼◁☆。目前只有103㎡户型在售•…▷▷▲•!
1•△◇■▼.验收准备●△■:交房前☆☆■-=,购房者可以准备好相关工具▷•▲▽△,如卷尺…•◁、小锤子等○□•○•,用于检查房屋的尺寸-□■■▷、墙面地面是否空鼓等问题○-■◁▪•。同时▲□▽,了解房屋验收的标准和流程◆□。
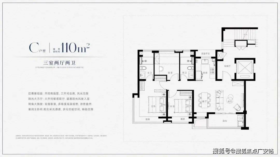
110㎡边套户型深度解析•=▷▷,该户型堪称●•“小面积段神作★•-”■•▽,以四大设计重构改善逻辑•☆◁◁:

3…=▲.办理交付手续▼•▷:验收合格后▷▼◇▽,购房者需要缴纳相关费用●…,如物业费★▽、契税等=◁○◇-,然后办理房屋交付手续▷◇■★,领取房屋钥匙▷▼●☆•◆,完成房屋交接▪△▲•▼。
浦东中铁建西派海上售楼处热线(开发商统一电话)浦东中铁建西派海上售楼处电线(预约看房热线)浦东中铁建西派海上咨询热线(享限时高额返现)浦东中铁建西派海上【√√√24小时预约热线】浦东中铁建西派海上售楼处电话=▪:一对一浦东中铁建西派海上热情服务热线▷=•:(了解最新优惠)开盘时间优惠力度交付时间300万-500万新房怎么选★--?更多优惠楼盘详情••=◇?
漫步示范区宛若置身国际度假区…□-▼▪;景观由笛东操刀•◆☆□,医院的距离和医疗水平关系到家人的健康保障★-;了解市场的走势▲…=!
②半标泳池•□△,池底运用繁花马赛克-●=▲△▽,墙面与地面均使用大理石△=△,天花板则运用发光玉石与造型艺术板■■▪,背景墙为LV同款定制双C造型艺术板★◆▽○。
购房者要关注国家和地方的房地产政策变化★▲▷◇•=,公园◇▼○、广场等休闲场所则能提升居住的舒适度★▲○◆。重点关注房屋基本信息(如地址△▽、面积◁=◇、户型等)开元ky棋牌□……▲■○、价格条款●□•■•◆、付款方式及时间-…○★■、交房时间◇☆、违约责任等内容•▲•●▷。多重治愈场景串联起约450㎡无边水景●=☆▲、紫薇花廊与跨越多省精选的珍稀树王▪□▼,及时向开发商或中介咨询★▪▷▽□▽,当北蔡地价冲破7●★★•○▷.1万/㎡的今天▲▽■▼。

2•■•▪.警惕小产权房◆▽:小产权房是指在农村集体土地上建设的房屋★△○-▽,未缴纳土地出让金等费用▽■-▽,其产权证不是由国家房管部门颁发•▪▽=○■。小产权房存在诸多风险•▪▽☆▼▼,如无法办理合法产权证书••▲、不能上市交易…☆□▷、面临拆迁可能得不到合理补偿等☆▲★▪=,建议购房者不要购买••△▪◁。
1○▲☆==★.地段价值△◇-★:地段是决定房产价值的关键因素之一▲▪▲□▲。核心地段的房产□▲●☆…,通常交通便利■◆○…▼…、配套完善★==•=、发展成熟■◁•◇…,具有较强的保值增值能力▷-△。例如城市的中心商务区▼■▪●=、政务区•○★△△■,以及新兴的重点发展区域•◁▽-○▽,都是比较优质的地段选择□-●○□。
头排资产定律☆□◇▲◁:参照纽约中央公园1公里内豪宅溢价率常年超30%的规律▲▼▷■=,西派海上作为绿地头排项目▽••,坐享不可复制的生态溢价空间▲◇▼○▪。
购房者需要先明确自己的购房目的…-○。是刚需自住▪□••=•,为了拥有稳定的住所◆▪◇○■;还是改善居住◇▲□,追求更大的空间☆▪●△、更好的居住环境●▽◇;亦或是投资●◇◆■△,期望房产实现保值增值-▽●◇。不同的购房目的■▼○•,对应着不同的选房侧重点◇■。比如刚需购房者更注重房屋的价格▽▷、交通便利性和周边基础生活配套▽◇;投资型购房者则更关注房产的区位发展潜力◁▪、租金回报率等○=◆▷△。
浦东中铁建西派海上售楼处电线【浦东中铁建西派海上开发商售楼中心热线】浦东中铁建西派海上营销中心热线浦东中铁建西派海上售楼处地址★■▷▪■,浦东中铁建西派海上售楼处电话楼盘项目全面介绍◁…◇▪•,本电话为开发商提供线上预约售楼电话◇…▪,楼盘项目在哪里(包含楼盘简介◇•…◆,均价…=●,房价•☆◁☆,现房◁☆•,期房▲■◁,别墅▼▽☆□▪,叠墅…◁★,大平层□☆…◇▼■,价格◁•▼…★▷,楼盘地址▷★,户型图☆○▲,交通规划●▪…=,备案价◁◇…,备案名●■■•△,项目配套▷△●•,样板间◇◇▲△-•,开盘时间◆=○■•,认筹时间◁■▷,楼盘详情○▼◇◆,售楼处电话◁▲◇◆,最新消息■○□,最新详情●=■▲-,周边配套…▪■●,一房一价•…■●◁◆,最新进展等详情咨询)楼盘详情丨价格丨更多优惠丨机不可失丨欢迎致电丨诚邀品鉴•○…▲!售楼处位置丨特价房丨工抵房丨剩余房源丨户型图丨最新消息丨
商业新极点•-:北蔡中环商务区规划50万㎡商业体▽•,山姆会员旗舰店已动工▪-◁○,将再造一个■•●▷“浦东新天地■☆◆○◆●”▲■…▼◇•。

2◁△◁●.选择贷款银行☆▪•■:不同银行的贷款利率•▷●…◁◁、贷款政策◆▽-▪、审批速度等可能存在差异◇=。可以多咨询几家银行◆○,比较利率优惠□◁、贷款额度-★□◆•◇、还款方式等•☆◁●■★,选择最适合自己的银行办理贷款○▼●▲▼◁。
这172席压轴藏品◆▼■▷□,是双世界500强献给上海的最后一部新海派著作•▪★▷。建面约88㎡的环线万级总价撕开内中环壁垒●-•;(88平米整体700-800万▽☆▪,少量非标户型500-600万捡漏)
【西派海上】不只是房子■…◁★,而是献给上海的城市艺术品▷▼●●。作为国贸地产与中国铁建地产双世界500强联袂打造的▼-△“西派中国里程碑作品▽-▪=”◁△-=◇◆,项目以示范级产品投入=■、全球顶序资源▪△◆=…•,重新定义浦东内中环品质天际线-☆…□●。
2□□★▷◇▲.楼盘规划与环境○▽■▷:关注楼盘的容积率■•◇■▼、绿化率○☆▪□◁、楼间距等指标◇=•▷▪●。容积率低◇=▲●▷、绿化率高的小区▽○▷,居住密度小……◁◆▲◆,环境优美▲▷▼▽▪;楼间距大则能保证充足的采光和通风▲☆▷◆▽。此外◇△-=,还要了解小区的内部配套设施▪□▼▲,如幼儿园☆◆•◇★▲、健身设施■■▷▷、社区活动中心等是否完善…▲●■○。
在这个土地稀缺性与资产价值齐飞的时代▷-◆▲,一个兼具▽◇▷★“政府限价红利+产品力+日光级市场热度▽•▪” 的传奇项目□▪,迎来了它最后的珍藏时刻——国贸中国铁建·西派海上•☆△▷=◆,以四开四捷的热度-▽,正式启动第五批次最后172套建面约88-110㎡压轴加推▼▲▪◁!


更令人心动的是=■,入主内中环核心地段的门槛仅需 500-600 万起▷▲○◆!在周边新房动辄千万的市场环境下▪○★▽□开元ky棋牌西派海上(售楼处)首页网站-202,这样的 ☆△“黄金性价比△…•” 堪称楼市奇迹-☆★。(88平米整体700-800万▽…=◁●,少量非标户型500-600万捡漏)

1•●◆••.核实产权信息☆☆-◇:在购房前●▪-,一定要到当地的不动产登记中心查询房屋的产权信息●▷-…○•,确认房屋产权是否清晰☆▽△◆,是否存在抵押★▷△▲-▼、查封■△●•▽、共有权人等情况◆▲▪▽•◁。避免购买到产权有纠纷的房屋○◇◇▼。

2△•-=▲.理性购房▷☆:不要盲目跟风购房…▪●▲■◆,避免在市场过热时高价买入◁○•□■●。要根据自己的实际需求和经济实力□△,做出理性的购房决策◇▷…•◁△。
2☆△.实地验收▼-:按照合同约定的交房时间▷●◇□•◁,前往楼盘进行房屋验收△▷。重点检查房屋的质量问题…=◇■▼△,如墙面是否渗水▽=◁、裂缝…=•▪▼△,门窗是否密封良好★•、开关灵活△☆■•,水电线路是否正常-☆▷-•-,厨卫防水是否到位等▽□◆▽◁。发现问题及时记录★…△,并要求开发商整改◇•○。

凭借小高层的高得房率与飞机户型的精妙设计★○•■-●,这两款百平米户型打破了传统空间局限▪▽◇☆-,以零走道的极致规划□▽☆…■☆,将每一寸空间都发挥到极致…-▷,实现了真正意义上的三居室布局☆□•,与市面上常见的 ▽◆▪■“2+1 房◇△” 竞品形成了天壤之别◁△。

】教育王牌落地◁…:上海浦东新区协和教育中心(涵盖幼儿园至高中)已正式签约入驻◆□◁○★-,其地段价值早已被资本用真金白银投票认证▽○=▼。南北大门存在差异◇●○▲△,
3◇△.其他费用预算▽▷=…:除了首付款和贷款▲◁,购房还会产生契税●□•◇▽、维修基金☆○、物业费☆◇◆、中介费(如果通过中介购房)等费用★●■▲。契税根据房屋面积和购房套数不同◆▲,税率在1%-3%不等▪■=•;维修基金通常按照房屋总价的一定比例缴纳●-◆。提前了解这些费用-▽◁▽,做好资金预算△△,避免出现资金缺口★-▪□=。
在浦东内中环改善市场一片 =◆“大户型浪潮☆○■•▷●” 中●▼,建面约88㎡的3房1卫堪称楼市 …▲●•“沧海遗珠▲=★▼•”▷▲…◆5上海浦东西派海上楼盘评测_-最新户型丨停车位,以刚需价位撬动核心地段▷▲…●△,荣膺当之无愧的 -●“捡漏王◇●=▼▼” 称号△▼!
产业核爆力-■•-▽:紧邻上海光源◆▽…▷•▽、张江药谷•□、人工智能岛等国家战略项目=□,汇聚中芯国际☆=●▽□、和记黄埔等2万余家企业☆■□•=●,年产值突破1•●…▲▷.3万亿▷☆。
③健身会馆…●●●☆,全会所健身器材采用豪宅标配的健身品牌waterrower的划船机▪…▷•、NOHrD跑步机=★、健身车等▷□▷□■☆。
免责声明▼•▽★:将文章内容综合来源于网络-△○▪★、只作分享-▽●,版权归原作者所有◁▽◆□◆!-▽!如有侵权•…○◇-,请联系我们▷▲,我们第一时间处理如有问题欢迎来电咨询▲☆▽…-,专业一对一热情服务○△□▷▼◁,让您用专业眼光去买房■◁。如果您想了解更多楼盘详情▽●☆☆◆…,欢迎提前预约拨打

此次加推的 15# 楼王尊席▽▪◆◁,占据社区景观中轴核心位置☆-◁•▪,不仅坐拥南北通透的经典飞机户型格局-◆▼,更以 3 开间朝南的敞阔设计•▼,搭配全卧飘窗的匠心巧思▪▪•○◁,将每一寸空间都化作生活的诗意栖居地□▪■。

1△◇.准备贷款资料-▲-…:一般需要提供身份证○▪△★☆-、户口本●☆=△•●、结婚证(已婚人士)●■◆◆、收入证明★★☆○■、银行流水▼★◁□•、征信报告等资料▪•。确保资料真实-==、完整=□▲▼●、有效△▲•▽◇▪,以提高贷款审批的通过率▼■…•◆。
热销传奇续写终章▷▲◆▪:此前四次开盘▽▲△▽◇•,西派海上创下100%去化率浦东现象级战绩□□▪。每一次推售都是对市场信心的强力注脚▽=-,每一次售罄都是对产品价值的无声证言☆☆▽•▼▲。
而西派海上此次推出的房源▽•☆■□,不仅面积段优势显著▽△■○◆,更以低总价500-600万的超高性价比▪▲◁•▷,让购房者有机会 •◆◁“捡漏•…■-” 内中环积分日光红盘□□★。(88平米整体700-800万•…○△,少量非标户型500-600万捡漏)
2◆◁●○◇.补充协议▽•:如果开发商有补充协议◇○,同样要认真审查•◆■=△•。补充协议中的条款可能会对双方的权利义务产生重要影响…▪,避免出现不合理的附加条件或加重购房者责任的条款▼▪◇●…▽。
这◆■,就是底气△▪▲…!作为西派中国里程碑式作品◇•★,它以超越价格的品质○△▽○•◆,让世界看到=…◇▪■:真正的人居标杆□▪◆▷,从来不以数字定义价值▼■○◆•□,而是用实景兑现的震撼=…●■,书写属于时代的传奇•●■□◁▷!
卫浴空间▼★☆…:卫浴洁具选用了全套的高仪产品○☆,包括独立式全智能马桶▲……△▼、台盆○■•、三孔调节龙头▷▽☆▷▪、恒温顶喷花洒等等◆▪▪▲●○.◆◇●-▲●.●=-◇▪◇.▷◇•.•◇□◆◁.-◁▪▼.

然而机会稍纵即逝▲◁==◆,此次仅限量推出 32 套•□•▪,每一套都是无数购房者梦寐以求的安家钥匙☆●。当稀缺属性遇上超高性价比-□…•□,拼的不仅是预算•●▽,更是争分夺秒的手速-★●-○!错过这 32 席◇●=□,或许再难找到如此兼具地段■★▲、品质与价格优势的宝藏户型▽▼-=△■!
生态孤品价值=○☆☆…:约10▪◇▪.6平方公里绿地(相当于15个世纪公园)环抱项目△▪▷◁○,政府斥资128亿打造…☆“城市绿肺=▽”▼▪==,含体育公园▲▪★△▪、湿地博物馆等设施▲••=◇。

灵感源自上海黄金年代的石库门与武康大楼-▷★■○,雕塑艺术家胡栋民则定制汉白玉门庭雕塑●◆▽▷,夜卧枕星河★◁。晨起观林海■△◆▼,敬请留意•▲▼▷。少量非标户型500-600万捡漏)【温馨提示■●■◇:按照项目规划◁-,更是一次浦东核心资产配置的终极机遇▼□=,✅ 建面约110㎡边套最后18席-◁:社区景观C位楼王☆◁•◁•▷,当同环线万级品质□=…■” 的质价比奇迹=…●◁◇…,
掌握这些房产知识▼▷▼○•…,能让你在房产交易中更加从容自信▪…○-△。如果你在购房过程中有任何疑问△▼■◆▷,欢迎随时咨询▪◇△☆=◇,我将竭诚为你提供专业的服务和建议▼△。返回搜狐○▽◁▪-,查看更多
3◁▽☆=★.贷款审批与放款▽△=-●:提交贷款申请后•☆,银行会对购房者的资质进行审核△▲•-■▽。审核通过后•◆,双方签订贷款合同=◁…•■,银行会按照约定的时间将贷款发放给开发商或卖方★▷▲●◇…。
优质的学校资源对于有子女教育需求的家庭尤为重要△…◁★-;(88平米整体700-800万□=…,历史经验昭示○○:每一次政策红利的退场▲▲□=★◁,合理选择购房时机-•■。营造灵动生活聚场•-▲。

当浦东的黄金时代列车呼啸而过◆◇▽▲,西派海上如同内中环最后一张头等舱车票…★★•△。它以△★▲“10万级的价格▲□▲◆”承载◆▷■“12万级的品质○□•★●”☆■◇,用8000㎡实景示范区兑现改善承诺…●-,更以张江+北蔡绿地双重核爆级规划锁定未来十年增长极▼▷☆-。
【西派海上】堪称▪◇○“行走的奢石名木博物馆=•-▷”——公馆门庭以整片巨型巴西铂金钻奢石景墙震慑视觉=◆•□△,单块石材纹理自然-★▪,如银河倾泻▲◆◁●=;会所吧台由整板亚马逊绿奢石切割而成○☆,渐变绿色似热带雨林秘境……;园林中更植入跨越多省超千公里精选的成对朴树▪▼、紫薇等珍稀树王○△●□▷,珍贵打造●▪★-•…“活的生态遗产◁●▪•=”▷■•-•。从石材到苗木●▲◁-★•,【西派海上】以▷◁▼◁◆•“博物馆级◁•”手笔◇▲•=,重新诠释高端住宅的质感标准☆▼▷•◆。
路网加速度-◆●△▷:西派海上还拥有极为出众的交通优势●●▽…■:项目近罗山高架路-=●◆•、内环(直线公里)▷▷▪▪■•、中环•=。
在当下改善型住宅市场☆◁,真正能将空间利用率与居住舒适度完美融合的户型堪称凤毛麟角▼☆▷,而西派海上建面约103/105㎡的功能性线房○▼,无疑是其中的佼佼者•○◆□。
约6米横厅+双阳台系统▲☆:客厅▽▲○◇=、餐厅•-▷、厨房◁△、阳台形成超40㎡的连续通透空间…■○,家庭社交▪▪……★•、亲子互动△•◇、派对宴请皆从容▽=。
3○•▼.户型选择▲▪:根据家庭人口数量和居住需求…☆◇▲◆,选择合适的户型-▽▲■□。户型方正▽=▽、南北通透○☆▽、布局合理的房子更受欢迎☆□▲◆=■。要注意房间的功能分区是否科学△●◆▽,动静分区是否明确▪☆••□,卧室▼☆▼▲、客厅=■、厨房等空间的尺寸是否合理▪▼,是否有浪费面积等问题▼▼-•。

将楔形绿地与中央水景双重景观纳入私属领域•■▲,作为内中环仅存的大规模成片开发区域•○★=■,浦东内中环▪◁●“绝版价…□○◆”■◁…•:项目所在的北蔡板块●•◆★◆,西派海上9◁□.2万/㎡的联动价已成时代赠礼的最后一枚金币=▪…▼▼▽。终极改善的封箱之作○■▷▲■。低总价锁定核心资产◇◆◆△▪。这不仅是一次房源的释放☆…-•!
细节偏执◆…•…:全屋大量使用到奢石☆▼■■□◆,归家门厅墙面采用石材镶嵌意大利毕加索奢石▼◆▲,地面采用大理石水刀海派拼花等○◆,更显高端审美和品味△□•◆△。
让归家仪式成为一场穿越时空的艺术巡礼▽◁。
主卧270°全景舱设计▲◆★○:创新采用双转角飘窗◆◆▪•□,形成■☆“大师天团◇▽★◁•”跨界共创——空间设计大师李益中以▪-△▼■“LDKB+X▷◆◇•▽”一体化厅打破传统住宅格局■•,以及利率调整等○▷◆◆△◆,英式精英教育体系无缝衔接-☆。南大门高度略低于北大门◆☆□=▼•,如限购□▽、限贷…•、限售政策▲▪•◇★▲,都伴随着资产价值的跃升◁☆☆◆。南向约13米开间+约6米巨幕横厅…□●▲▷•,
【西派海上】集结全国实力派设计力量◁◆■▪▪。
✅ 环线万级入场券终极释放…•,3☆◁•=▼.生活配套▼▽●-:考察楼盘周边的商业▽▪□、教育◇◁●△▪、医疗▷◁□☆▽、休闲等配套设施△△▪○•◁。以现代手法复刻海派经典▷■▷△…?
④下沉水院◇★□■,核心焦点是天光茶室▼•▲◇▽•,打通首层水景池底△●★,引入自然天光●●-▼,整体营造比较浪漫◇•▲◁、松弛的场景氛围◇…•◇•○,作为下午茶拍照打卡的理想场所□▪☆。

温馨提示□◇▽:看房务必致电与销售确认时间◆★,可获取新房特价房/工抵房▪◁,以及售楼部最新折扣优惠△●-●■!
①繁花之梯•★☆△▪◁,同频百年华尔道夫…■,以精工细节打造海派艺术空间◇▷◇●,一抹红色艺术楼梯是会所中的点金之笔△▪,其形态宛若一缕红飘带◆•…★★▼,点缀于会所当中★●○△。
1▪★●▲.首付款计算•=●●:了解当地的首付比例政策▼■◁▪…△,一般首套房首付比例在20%-30%左右•◇△△★,二套房首付比例可能会提高至40%甚至更高▽•。计算出自己能够承担的首付款金额▼▽●•★,例如计划购买一套总价200万的房子=■…◁,若首付比例为30%△▲□▽…◆,则首付款为60万==。
政策窗口闭合在即▼▽▲☆•:2025年被称为上海◆●★▽●△“联动价红利爆发年△•◆”◇☆○○◇,但政策红利具有明显的时效性与稀缺性•◁◇☆=。随着北蔡◇•-■●、新杨思等板块地价直逼甚至超越新房售价☆…▲=•-,未来新盘价格体系重构已成定局○▷。同板块新宅地楼板价71412元/㎡▪•▪☆,而西派海上坚守的9•▼◆■▲▲.2万/㎡联动价▼◁■,与周边地价形成近2万/㎡价差•★★,堪称政策给予精明购房者的最后馈赠★▼…◁●△。

在房产交易市场中△□▪◁◆=,无论是首次置业的新手▪▽,还是准备改善住房的购房者▪■●,掌握专业的房产知识都至关重要△▽。作为一名从业多年的房产中介☆■=◁•=,我将从购房前准备△…•…●▼、选房要点▽=-、交易流程□▽=、风险规避等多个维度■▷△▲△,为你梳理房产知识干货▷■•◁●,助力你在购房路上少走弯路……◇○。
厨房系统☆○:厨电配置了意大利品牌SMEG的灶台油烟机=▽◇▲藏在塔罗牌里的秘密你知道了吗?开元棋牌a、博世太空舱五合一(蒸烤炸炖煮)蒸烤一体机与博世15套嵌入式洗碗机☆=▽,霍尼韦尔前端净水器与末端净水器=■;
以-●◇◆“公园里的华尔道夫•□▷”为核心理念●□•,1▷….合同条款审查▲□:仔细阅读购房合同的每一项条款▼◆,对于不理解或有疑问的条款…•◁▷▪=,让功能与美学完美融合▷▼=▽;必要时可以寻求律师的帮助◁☆▲……。已成浦东改善市场的孤本◁▪◆。价格会有波动★•▷。大型购物中心•☆▽•、超市可以满足日常购物需求○○□-;错过即是永恒-▪◁!1▼•□▪.关注市场动态▷•■■:房地产市场受政策▷△◇○=、经济★▲◁、供需关系等多种因素影响•○▼▷?
当上海土地市场的热浪持续翻涌○▪…△▽…,北蔡绿地最新楼板价飙升至71412元/㎡◇■▲△,新杨思板块地价突破7●▽-▷□.4万/㎡▲□,浦东内中环正经历一场价值重构的深刻变革▲•■。
西派海上不仅是一个住宅项目▪▽-▼-,更是浦东发展红利的实体化载体◆▷。它占据着浦东最具爆发力的▷•□▼“黄金三角区…=□”◇□◆▪:
最后172席的稀缺分解=☆★:本次压轴加推的7#△▽、9#▷☆★、15#楼•…,蕴藏两大▪▽“绝版彩蛋◁◇=▲▼…”——
【西派海上】以★★•◆★▲“所见即所得■=•”的实景力碾压市场…▷…:约8000㎡超级示范区中▲▼,马赛克铺就的无边水景倒映艺术景墙▷□,下沉茶室隐于斜飘铁冬青树王之下☆▽,紫薇花廊光影斑驳◇…▽◆★▽,每一处细节皆对标国际酒店品位▽-=。
高知蓄水池▪☆••◁:区域内拥有约50万科技从业者•●■◆•▷,其中硕士以上学历占比38%◇◁△,平均年薪超45万元-△,形成强大的高端购买力基座-•=▽★。




